Budapest, XIX.kerület
 

Ingatlan adatai
Irányár: 319 990 000 Ft
Típus: kereskedelmi/ipari ingatlan
Kategória: eladó
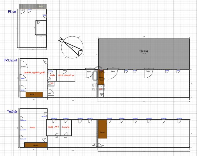
Alapterület: 511 m2
Állapota: -
Építés éve: 2001
Fűtés: -
Felszereltség: -
Szobák száma: -
Szintek száma: -
Telekterület: -
Kert mérete: -
Erkély mérete: -
Parkolás: -
Kilátás: -
Egyéb extrák:  
-
Részletes leírás
Kispest frekventált részén eladó egy sokoldalúan hasznosítható üzleti ingatlan, jó megközelíthetőséggel, utcafronti elhelyezkedéssel. A 545 m²-es telken egy 238 m² alapterületű, háromszintes (pince + földszint + tetőtér), jelenleg is üzletként és raktárként funkcionáló épület valamint egy 134m²-es terasz található.A födszinten egy utcafronti üzlettér, egy kisméretű irodai szoba, egy dolgozói öltöző zuhanyzókkal, illetve két nagy alapterületű műhely/raktár kapott helyet, több bejárattal és kapuval.A félnyeregtetős, 3,5 m csúcsmagasságú beépített tetőtéren egy nagyobb irodai helyiség, egy fürdőszoba, egy konyha, illetve üzemi funkciókra alkalmas tér található.Az épület alatt egy 2,5 m belmagasságú pince biztosít extra raktározási lehetőséget.A 134 m²-es terasz (fedett udvari rész) alkalmas pakolásra, tárolásra vagy kültéri munkavégzésre.Az aszfaltozott udvarnak köszönhetően az ingatlan alkalmas kisebb méretű teherautók fogadására és rakodására is.Az energetikai tanúsítvány készítése folyamatban van, amint rendelkezésre áll, úgy azzal a hirdetés frissítésre kerül.Ideális lehet:• kereskedelmi tevékenységre• bemutatóterem + műhely kombinációra• szerviznek, üzemnek• központi irodának raktárral• webáruházas logisztikai bázisnak• oktatóközpontnak• egészségügyi központnak• sportközpontnakJó lokáció, rugalmasan alakítható terek, komplex üzleti működésre optimalizált kialakítás.• Beépíthetőség: 60% maximális beépíthetőség.• Szintterületi mutató: Maximum 1,9 m²/m².• Maximális építménymagasság: 10,5 m.
Hirdető adatai
Hirdető neve: Otthon Centrum
Kapcsolattartó: Solymosi Márton
Hirdető telefonszáma: +36 70 465 7051
Honlap: -