Pest megye, Szentendre
 

Ingatlan adatai
Irányár: 96 500 000 Ft
Típus: lakás (tégla)
Kategória: eladó
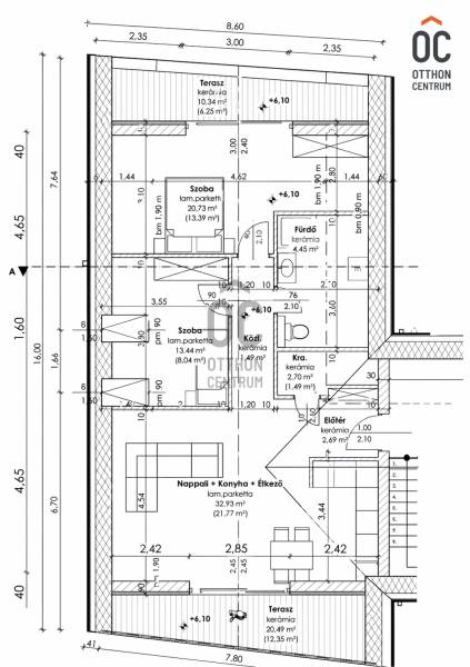
Alapterület: 110 m2
Állapota: -
Építés éve: 2020
Fűtés: elektromos
Felszereltség: -
Szobák száma: 3
Szintek száma: -
Telekterület: -
Kert mérete: -
Erkély mérete: 30 m2
Parkolás: -
Kilátás: udvari
Egyéb extrák:  
-
Részletes leírás
Szentendre egyik legkedveltebb részén, mindössze pár lépésre a Duna-parttól kínálunk megvételre egy bruttó 110 m²-es, modern, tetőtéri lakást, amely tökéletes választás mindazoknak, akik a nyugalmat és a minőséget keresik.A lakás szíve a világos, amerikai konyhás nappali, amely közvetlen kapcsolatban áll a két tágas, fedett terasszal – ideális helyszín reggeli kávézáshoz vagy esti kikapcsolódáshoz.Főbb jellemzők:2 külön nyíló szobagázcirkós padlófűtésminden helyiségben hűtő-fűtő klímafürdőszoba + külön vendég WCelektromos, távirányítós redőnyökalacsony közös költség (14.000 Ft/hó)A lakáshoz tartozik egy zárt, belső udvari parkoló, amely elektromosan vezérelt kapun keresztül közelíthető meg.A lakópark különlegessége, hogy a belső udvarban cukrászda, lakberendezési üzlet, szépségszolgáltatások és fogorvosi rendelő is megtalálható — minden karnyújtásnyira.A közlekedés kiváló: buszmegálló közvetlenül a ház előtt.Ez az ingatlan tökéletes választás saját otthonnak vagy akár befektetésnek is — Szentendre hangulata és a Duna közelsége garantált érték.Érdeklődj most, és nézd meg személyesen!
Hirdető adatai
Hirdető neve: Otthon Centrum
Kapcsolattartó: Gút Zsolt
Hirdető telefonszáma: +36 70 469 3056
Honlap: -