Hajdú-Bihar megye, Debrecen
 

Ingatlan adatai
Irányár: 135 000 000 Ft
Típus: ház
Kategória: eladó
Alapterület: 97 m2
Állapota: új
Építés éve: 2026
Fűtés: -
Felszereltség: -
Szobák száma: 4
Szintek száma: -
Telekterület: 450 m2
Kert mérete: 450 m2
Erkély mérete: 29 m2
Parkolás: -
Kilátás: -
Egyéb extrák:  
-
Részletes leírás
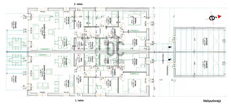
2. lakás: DNy-i tájolás, Br. 124 nm90 nm lakótér + 29 nm terasz (ebből 14 nm fedett) + 20 nm garázs + 450 nm telekhányad.- amerikaikonyhás nappali étkezővel (36 nm)- előszoba ( 6 nm)- háztartási helyiség/kamra (2 nm)- 2 fürdőszoba káddal és tusolóval ( 3, 5 nm)- 3 hálószoba ( 9,10,11 nm)- közlekedő/gardrób (8 nm)- garázs- nyitott és fedett teraszok.Projekt bemutatásaJózsán, Debrecentől pár percre már felépült és azonnal költözhető ikerházak várják, ahol minden adott egy nyugodt, kényelmes családi élethez.Reggeli kávé a teraszon.Tágas, napfényes nappali.Külön nyíló szobák, ahol mindenkinek jut saját tér.És egy kert, ami tényleg a sajátja.Itt nem kompromisszumot köt – hanem szintet lép.Amiért szeretni fogja:- élhető, jól átgondolt alaprajz- amerikai konyhás nappali + 3 háló- 2 fürdőszoba a kényelmes hétköznapokért- saját, ~450 m²-es kertÉs ami hosszú távon is érték:- modern hőszivattyús rendszer- alacsony fenntartás- teljes komfort: klíma, motoros árnyékolás- minőségi kivitelezés, igényes részletekEz az az otthon, ahova jó megérkezni.És még jobb ott maradni.
Hirdető adatai
Hirdető neve: Otthon Centrum
Kapcsolattartó: Némethné Zsuzsa
Hirdető telefonszáma: +36 70 412 3861
Honlap: -