Budapest, XIV.kerület
 

Ingatlan adatai
Irányár: 48 000 000 Ft
Típus: lakás (tégla)
Kategória: eladó
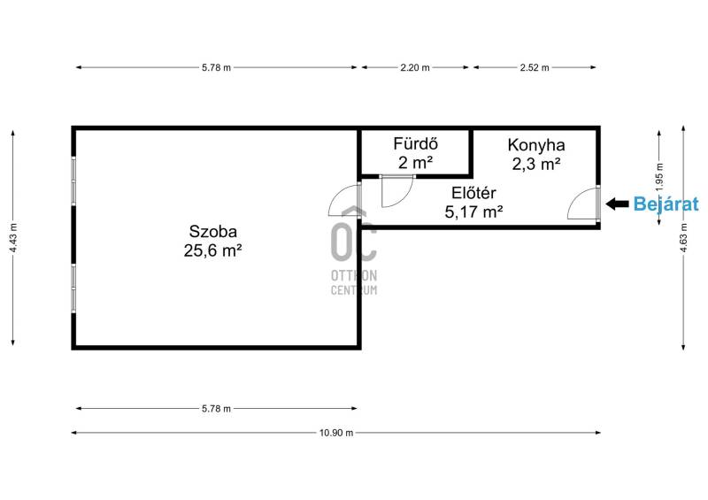
Alapterület: 34 m2
Állapota: felújítást igényel
Építés éve: 1950
Fűtés: gáz (konvektor)
Felszereltség: -
Szobák száma: 1
Szintek száma: -
Telekterület: -
Kert mérete: -
Erkély mérete: -
Parkolás: -
Kilátás: utcai
Egyéb extrák:  
-
Részletes leírás
Budapest XIV. kerületének közkedvelt, kiváló infrastruktúrával rendelkező részén kínálunk megvételre egy 34 m²-es, 1 szobás, első emeleti társasházi lakást, rendezett, téglaépítésű házban.Az ingatlan egyik nagy előnye a 315 cm-es belmagasság, amely tágasabb térérzetet biztosít, valamint akár galériázásra is lehetőséget ad. A lakás DK-i tájolású, ennek köszönhetően világos, kellemes benapozottságú.A lakás jelenlegi állapota felújítandó, így új tulajdonosa teljes mértékben saját ízlésére és igényeire formálhatja. Kiváló választás lehet első lakásnak, befektetésnek vagy kiadásra is.Elrendezése:tágas, 25 m²-es szobakülön konyhafürdőszoba WC-velA társasház előnyei:rendezett lakóközösségközös kert használat, ami ritka és értékes lehetőség a városbanátlagos, állapotú épületKörnyék és közlekedés:Az ingatlan elhelyezkedése kiváló: jó közlekedés, villamos, busz és troli könnyen elérhető, így a belváros gyorsan megközelíthető.A környék zöldövezeti hangulatú, mégis központi fekvésű. Bár minden fontos szolgáltatás a közelben megtalálható, a lakás nem túl zajos, kellemes élhető környezetet biztosít.További előnyök:alacsony közös költséggyors birtokbaadás (akár 2 héten belül)kiváló lokációértéknövelő felújítási lehetőségHa egy jó helyen lévő, saját ízlésre alakítható zuglói lakást keres, amely hosszú távon is remek döntés lehet, ezt érdemes megnézni!Keressen bizalommal további információért vagy megtekintésért!
Hirdető adatai
Hirdető neve: Otthon Centrum
Kapcsolattartó: Major Balázs
Hirdető telefonszáma: +36 70 388 5536
Honlap: -