Pest megye, Szentendre
 

Ingatlan adatai
Irányár: 129 000 000 Ft
Típus: ház
Kategória: eladó
Alapterület: 95 m2
Állapota: -
Építés éve: 1970
Fűtés: gáz (cirko)
Felszereltség: -
Szobák száma: 3
Szintek száma: -
Telekterület: 322 m2
Kert mérete: 322 m2
Erkély mérete: -
Parkolás: -
Kilátás: -
Egyéb extrák:  
-
Részletes leírás
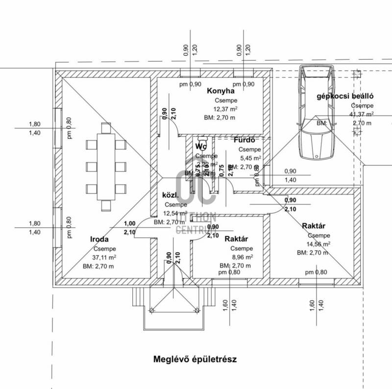
Az eredeti tégla falak és az alap megmarad, minden más teljesen új szintre lép. Egy klasszikus „Kádár kocka” alakul át modern, XXI. századi élettérré.Szentendrén, a belváros közelében, mégis nyugodt környezetben valósul meg ez az átgondolt, teljes körű megújítás.A felújítás során megújul:– a teljes tetőszerkezet– az elektromos hálózat– a fűtésrendszer– a külső és belső nyílászárókA belső tér teljesen újragondolt elrendezést kap:– amerikai konyhás nappali– fürdőszoba wc-vel– három külön nyíló hálószobaAz átalakulás már elindult. Ez nem csak egy kész otthon megvásárlása, hanem lehetőség arra, hogy már a folyamat részese legyél. A burkolatok, színek, szaniterek és részletek még a saját ízlésed szerint alakíthatók.A ház végleges alapterülete 95 m², a telek mérete 322 m².Az ingatlan osztatlan közös tulajdon, ügyvédi megosztással. Ikerház jellegű, azonban a két épület fizikailag nem érintkezik, a telekrészek külön használatban lesznek.A tulajdoni lapon „iroda” besorolás szerepel, ezért lakossági, támogatott hitelek nem vehetők igénybe. Az ingatlan piaci hitellel finanszírozható.Vállalkozásban gondolkodóknak külön előny, hogy a 3%-os vállalkozói hitel elérhető, így ideális lehet:– irodának– orvosi rendelőnek– vállalkozás székhelyénekEgy átgondolt, értéket teremtő projekt, amely egyszerre kínál otthont és üzleti lehetőséget.Kulcsrakész ár: 129 900 000 FtTervezett átadás: 2026. augusztus 31.Az ingatlan jelenlegi állapotában is megtekinthető, a teljes műszaki dokumentáció rendelkezésre áll.A hirdetésben szereplő külső kép látványkép.Ha szeretnéd elsőként birtokba venni ezt az újjászülető teret, és a saját elképzeléseid szerint formálni, keress bizalommal.#szentendre #eladoingatlan #ujjashaz #felujitas #ikerhaz #iroda #realestatehungary #homeforsale
Hirdető adatai
Hirdető neve: Otthon Centrum
Kapcsolattartó: Éberl Viktória
Hirdető telefonszáma: +36 70 388 6166
Honlap: -